Bealey Spur

ARCHITECTURAL PLAN

Enquire Now

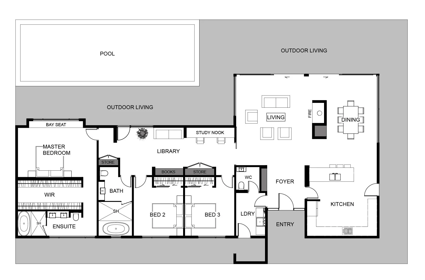
  3 plus study nook 2.5  1  197 sqm  23.4 x 12.2 m

 Download Plans

Base price: POA

Learn More

The Bealey Spur has a bright, open design with an abundance of windows that let plenty of light into the home and the outdoor living areas are seamlessly connected with the indoor living spaces via sliding doors. The living areas are separated from the bedroom, allowing for privacy and seclusion.

The master bedroom has the luxury of a walk in wardrobe and ensuite and the library and study nook makes efficient use of space in this home. The Bealey Spur features all you need for comfortable living.

View previous | View next

 

Plan can be mirrored

 

Base price: POA

For a finished home from the foundations up in our standard specifications, including:

  • Council fees (PC sum $5,000)

  • Services and drainage laid from boundary (allowance 15m)

  • Rib-Raft 300mm waffle slab foundation based on 3604 ground 

  • All NZ timber framing

  • Colorsteel Maxam Roofing

  • Cladding selection from our standard selections

  • Double glazed thermally broken windows

  • Earthwool insulated with GIB interior linings 

  • Level 4 plastering and painting

  • Bathrooms, kitchen and appliances 

  • Selected flooring from our standard flooring range

  • Everything in our Standard Specifications (excluding upgrades)

Base price excludes:

  • Specification upgrades

  • Resource consents or any surveying consultants if required

  • Earthworks & retaining walls

  • Drainage & services (including sewer, detention and water tanks if required)

  • Structural Engineering and site-specific foundations 

  • SED wind zones and/or coastal areas

  • Landscaping 

 

Keen to learn more? Get in touch today!

Our team can help you customise this design, explore pricing options, and guide you through the next steps. Send us a message and our expert team will be in touch soon.

 

0800 FRIDAY (0800 374 329)
Monday - Friday: 8am - 5pm