Eketahuna

ARCHITECTURAL PLAN

Enquire Now

  3 2  1  2  253 sqm  27.7 x 12.9 m

 Download Plans

Base price: POA

Learn More

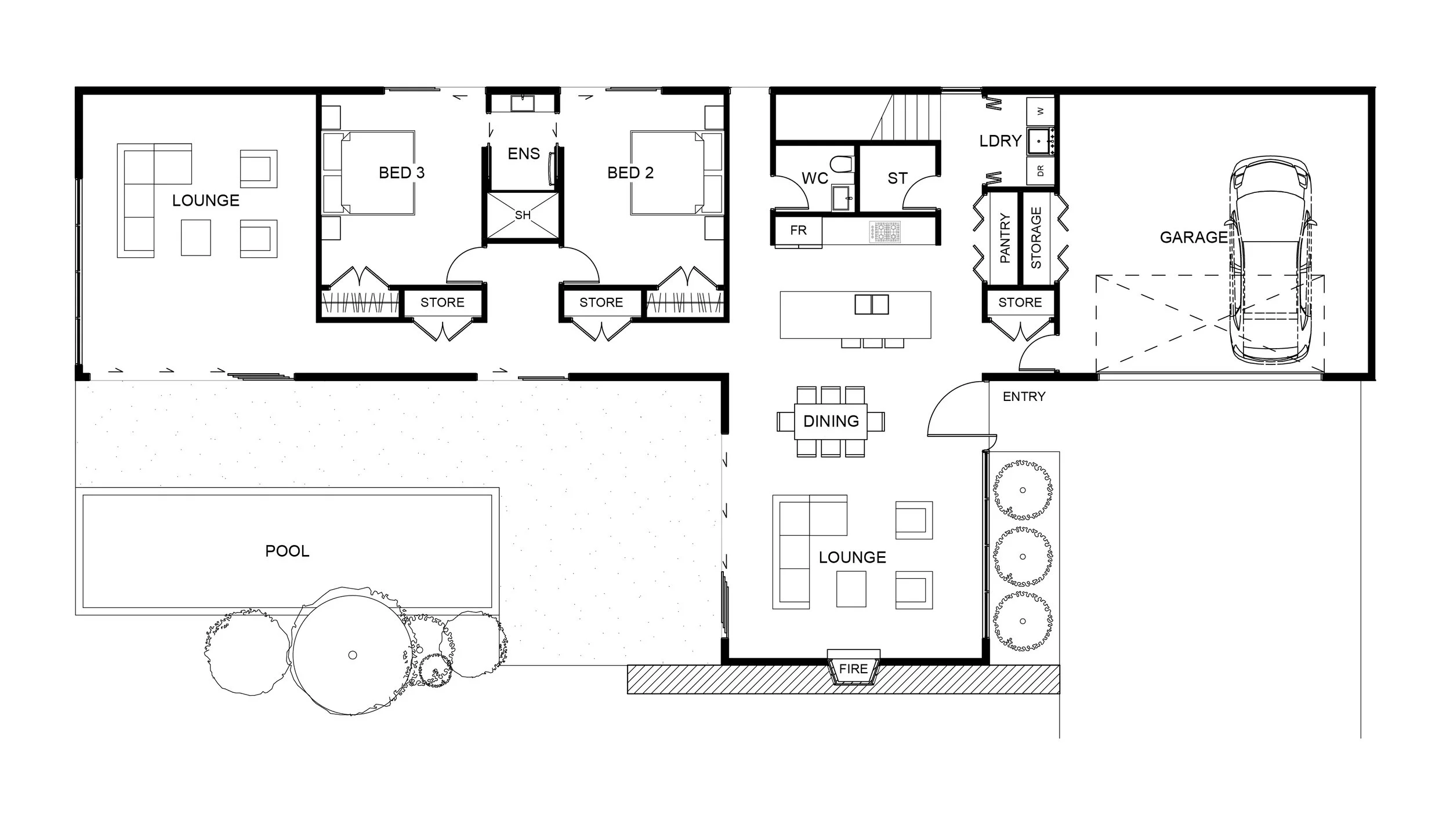
The smart and sophisticated Eketahuna makes the whole family feel welcome. You enter the home via a welcoming open plan kitchen, dining and lounge room which opens out onto the private outdoor living space. A second lounge is well positioned at the opposite end of the house and there is plenty of storage space throughout this home.

The Eketahuna continues to impress with a secluded upstairs master bedroom offering a generous walk in robe and ensuite. The second and third bedrooms are cleverly set away between the living spaces with their very own shared ensuite. Enjoy life with the Eketahuna.

View previous | View next

 

GROUND FLOOR

LEVEL ONE

 

Base price: POA

For a finished home from the foundations up in our standard specifications, including:

  • Council fees (PC sum $5,000)

  • Services and drainage laid from boundary (allowance 15m)

  • Rib-Raft 300mm waffle slab foundation based on 3604 ground 

  • All NZ timber framing

  • Colorsteel Maxam Roofing

  • Cladding selection from our standard selections

  • Double glazed thermally broken windows

  • Earthwool insulated with GIB interior linings 

  • Level 4 plastering and painting

  • Bathrooms, kitchen and appliances 

  • Selected flooring from our standard flooring range

  • Everything in our Standard Specifications (excluding upgrades)

Base price excludes:

  • Specification upgrades

  • Resource consents or any surveying consultants if required

  • Earthworks & retaining walls

  • Drainage & services (including sewer, detention and water tanks if required)

  • Structural Engineering and site-specific foundations 

  • SED wind zones and/or coastal areas

  • Landscaping 

 

Keen to learn more? Get in touch today!

Our team can help you customise this design, explore pricing options, and guide you through the next steps. Send us a message and our expert team will be in touch soon.

 

0800 FRIDAY (0800 374 329)
Monday - Friday: 8am - 5pm