Moreton Bay
2-STOREY FAMILY HOME PLAN
4 2.5 1 2 169 sqm 8.7 x 13 m
Base price: $561,750
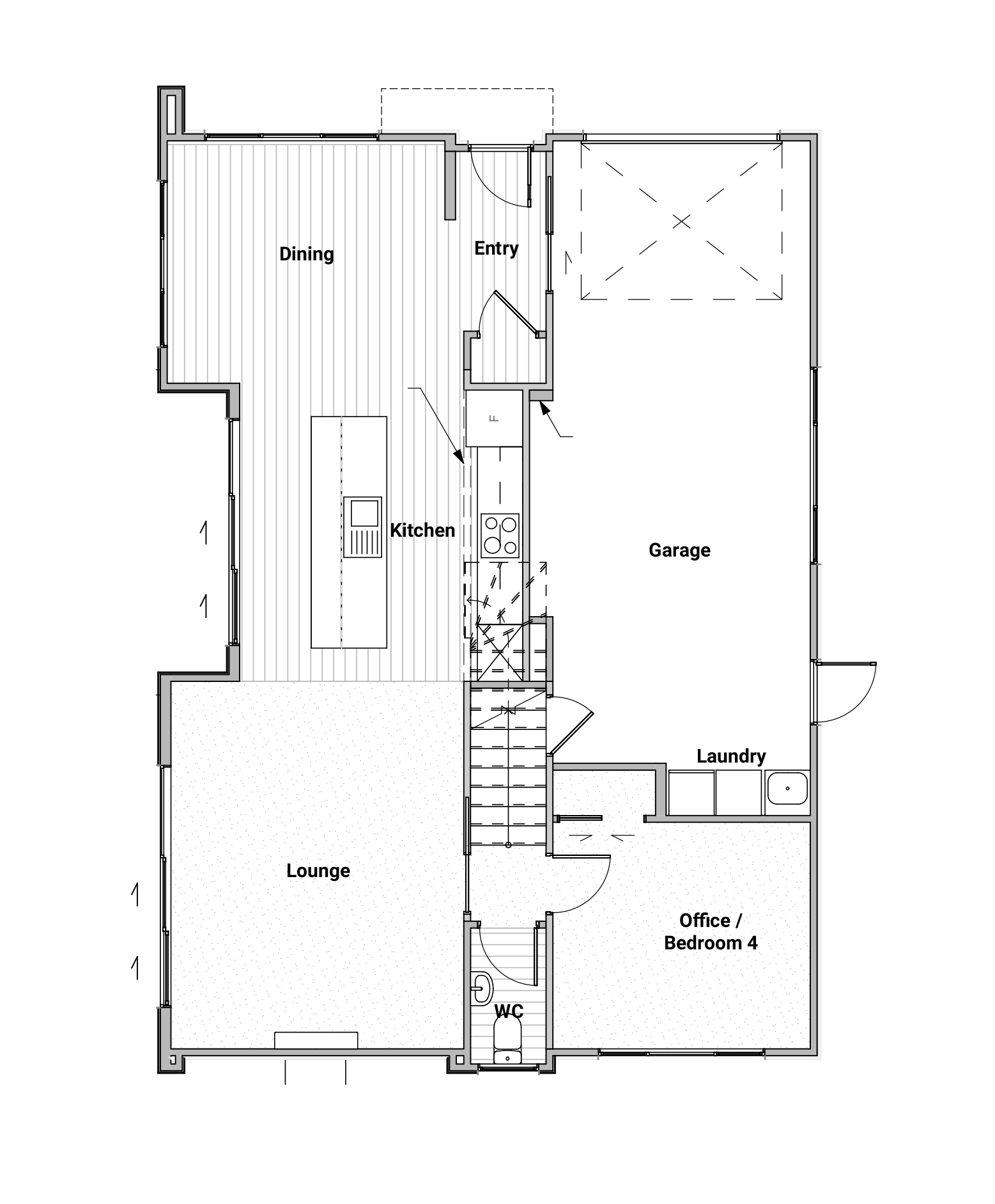
A traditional homely shape makes this townhouse appealing. An extra room gives you the option to add a second living or fourth bedroom! While the front looks like a single garage, this garage has your second car covered with its tandem layout! The main living in this home is downstairs with bedrooms up, a private guest toilet down and two bathrooms up. This townhouse is flexible and surprising in the best way possible!
← View previous | View next →
GROUND FLOOR
LEVEL ONE
Plan can be mirrored
Moreton Bay Built at 61 Routley Crescent
Moreton Bay Built at 61 Routley Crescent
Moreton Bay Built at 61 Routley Crescent
Moreton Bay Built at 61 Routley Crescent
Moreton Bay Built at 61 Routley Crescent
Moreton Bay Built at 61 Routley Crescent
Moreton Bay Built at 61 Routley Crescent
Moreton Bay Built at 61 Routley Crescent
Moreton Bay Built at 61 Routley Crescent
Moreton Bay Built at 61 Routley Crescent
Moreton Bay Built at 61 Routley Crescent
Moreton Bay Built at 61 Routley Crescent
Base price: $561,750
For a finished home from the foundations up in our standard specifications, including:
Council fees (PC sum $10,000)
Services and drainage laid from boundary (allowance 15m)
Rib-Raft 300mm waffle slab foundation based on 3604 ground
All NZ timber framing
Colorsteel Maxam Roofing
Cladding selection from our standard selections
Double glazed thermally broken windows
Earthwool insulated with GIB interior linings
Level 4 plastering and painting
Bathrooms, kitchen and appliances
Selected flooring from our standard flooring range
Everything in our Standard Specifications (excluding upgrades)
Base price excludes:
Specification upgrades
Resource consents or any surveying consultants if required
Earthworks & retaining walls
Drainage & services (including sewer, detention and water tanks if required)
Structural Engineering and site-specific foundations
SED wind zones and/or coastal areas
Landscaping
Keen to learn more? Get in touch today!
Our team can help you customise this design, explore pricing options, and guide you through the next steps. Send us a message and our expert team will be in touch soon.
0800 FRIDAY (0800 374 329)
Monday - Friday: 8am - 5pm