Paparoa

ARCHITECTURAL PLAN

Enquire Now

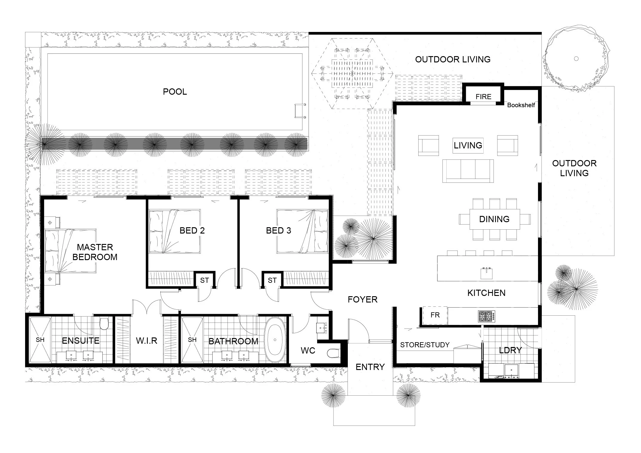
  3 plus study 2.5  1  150 sqm  20.2 x 11.3 m

 Download Plans

Base price: POA

Learn More

This magnificent modern design features a spacious dining, kitchen, living area leading to a fantastic private pool area, perfect for those warm summer months. Stone and timber give this home a stunning look not to mention the perfect balance of floor to ceiling windows, providing plenty of sunlight and warmth. One master and two bedrooms provide more than enough space for all as well as an extra store or study room, this house really does have it all.

View previous | View next

 

Plan can be mirrored

 

Base price: POA

For a finished home from the foundations up in our standard specifications, including:

  • Council fees (PC sum $5,000)

  • Services and drainage laid from boundary (allowance 15m)

  • Rib-Raft 300mm waffle slab foundation based on 3604 ground 

  • All NZ timber framing

  • Colorsteel Maxam Roofing

  • Cladding selection from our standard selections

  • Double glazed thermally broken windows

  • Earthwool insulated with GIB interior linings 

  • Level 4 plastering and painting

  • Bathrooms, kitchen and appliances 

  • Selected flooring from our standard flooring range

  • Everything in our Standard Specifications (excluding upgrades)

Base price excludes:

  • Specification upgrades

  • Resource consents or any surveying consultants if required

  • Earthworks & retaining walls

  • Drainage & services (including sewer, detention and water tanks if required)

  • Structural Engineering and site-specific foundations 

  • SED wind zones and/or coastal areas

  • Landscaping 

 

Keen to learn more? Get in touch today!

Our team can help you customise this design, explore pricing options, and guide you through the next steps. Send us a message and our expert team will be in touch soon.

 

0800 FRIDAY (0800 374 329)
Monday - Friday: 8am - 5pm