Pohara Bay

FAMILY HOME PLAN

Enquire Now

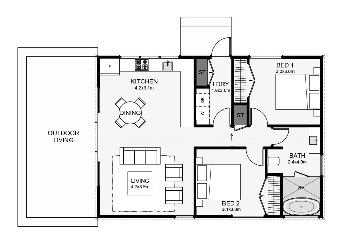
  2 1  1  73 sqm  10.1 x 7.3 m

 Download Plans

Base price: $270,100

Learn More

This home designed to maximise a narrow lot; however, wider sites can also benefit. You have the opportunity with this design to link on a garage or carport through the external laundry door. Inside, the bathroom is at the rear of the home, adding privacy and quick access for both bedrooms. If you’re someone who likes options but wants to start small, start here!

View previous | View next

 

Plan can be mirrored

 

Base price: $270,100

For a finished home from the foundations up in our standard specifications, including:

  • Council fees (PC sum $5,000)

  • Services and drainage laid from boundary (allowance 15m)

  • Rib-Raft 300mm waffle slab foundation based on 3604 ground 

  • All NZ timber framing

  • Colorsteel Maxam Roofing

  • Cladding selection from our standard selections

  • Double glazed thermally broken windows

  • Earthwool insulated with GIB interior linings 

  • Level 4 plastering and painting

  • Bathrooms, kitchen and appliances 

  • Selected flooring from our standard flooring range

  • Everything in our Standard Specifications (excluding upgrades)

Base price excludes:

  • Specification upgrades

  • Resource consents or any surveying consultants if required

  • Earthworks & retaining walls

  • Drainage & services (including sewer, detention and water tanks if required)

  • Structural Engineering and site-specific foundations 

  • SED wind zones and/or coastal areas

  • Landscaping 

 

Keen to learn more? Get in touch today!

Our team can help you customise this design, explore pricing options, and guide you through the next steps. Send us a message and our expert team will be in touch soon.

 

0800 FRIDAY (0800 374 329)
Monday - Friday: 8am - 5pm