
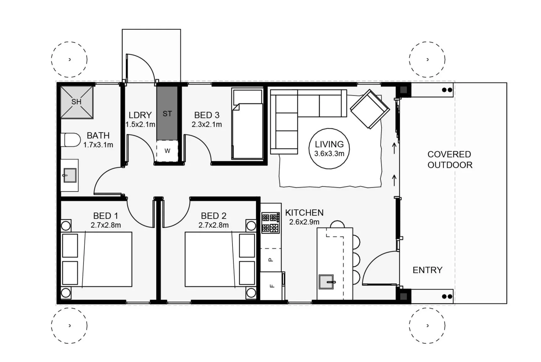
Pūkeko
COMPACT SERIES PLAN
3 1 1 59 sqm 11.1 x 6.2 m
Base price: $247,800
This tiny home offers a unique architectural design with three bedrooms, a separate laundry, and the option to connect to a carport/garage. It also features an outdoor cover, open-plan living, a good-sized bathroom, and metal tray and shiplap timber cladding. This build is perfect for those looking for a modern, stylish small home with all the amenities of modern life.
← View previous | View next →
Plan can be mirrored

Base price: $247,800
For a finished home from the foundations up in our standard specifications, including:
Council fees (PC sum $5,000)
Services and drainage laid from boundary (allowance 15m)
Rib-Raft 300mm waffle slab foundation based on 3604 ground
All NZ timber framing
Colorsteel Endura Roofing
Cladding selection from our standard selections
Double glazed thermally broken windows
Earthwool insulated with GIB interior linings
Level 4 plastering and painting
Bathrooms, kitchen and appliances
Selected flooring from our standard flooring range
Everything in our Standard Specifications (excluding upgrades)
Base price excludes:
Specification upgrades
Resource consents or any surveying consultants if required
Earthworks & retaining walls
Drainage & services (including sewer, detention and water tanks if required)
Structural Engineering and site-specific foundations
SED wind zones and/or coastal areas
Landscaping