Punakāiki

ARCHITECTURAL PLAN

Enquire Now

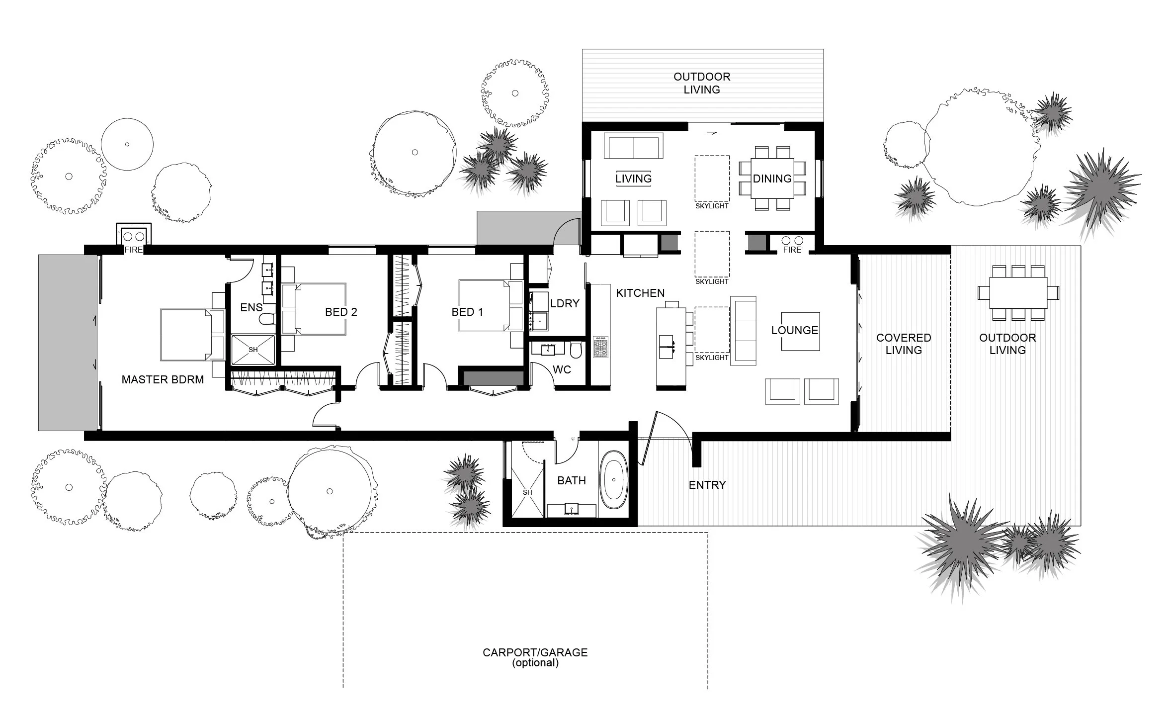
  3 2.5  2  0–1  179 sqm  26.5 x 12.4 m

 Download Plans

Base price: POA

Learn More

The Punakāiki is a stylish single storey home that all the family will enjoy. An open plan kitchen and lounge flow seamlessly through to the outdoor entertainment area giving you extended entertaining space and the three skylights brighten the already sunny living areas with more natural light. For ease of access and convenience the laundry is located near the kitchen. With the bedrooms close together and located away from living areas the Punakāiki is the perfect home for young families.

View previous | View next

 

Plan can be mirrored

 

Base price: POA

For a finished home from the foundations up in our standard specifications, including:

  • Council fees (PC sum $5,000)

  • Services and drainage laid from boundary (allowance 15m)

  • Rib-Raft 300mm waffle slab foundation based on 3604 ground 

  • All NZ timber framing

  • Colorsteel Maxam Roofing

  • Cladding selection from our standard selections

  • Double glazed thermally broken windows

  • Earthwool insulated with GIB interior linings 

  • Level 4 plastering and painting

  • Bathrooms, kitchen and appliances 

  • Selected flooring from our standard flooring range

  • Everything in our Standard Specifications (excluding upgrades)

Base price excludes:

  • Specification upgrades

  • Resource consents or any surveying consultants if required

  • Earthworks & retaining walls

  • Drainage & services (including sewer, detention and water tanks if required)

  • Structural Engineering and site-specific foundations 

  • SED wind zones and/or coastal areas

  • Landscaping 

 

Keen to learn more? Get in touch today!

Our team can help you customise this design, explore pricing options, and guide you through the next steps. Send us a message and our expert team will be in touch soon.

 

0800 FRIDAY (0800 374 329)
Monday - Friday: 8am - 5pm