
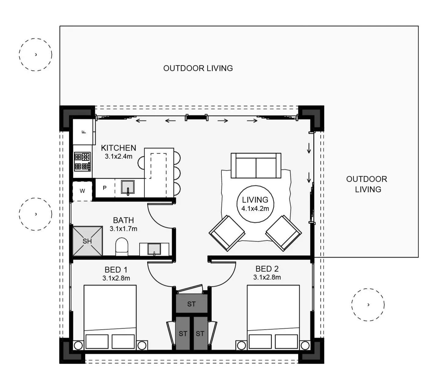
Takahē
COMPACT SERIES PLAN
2 1 1 56 sqm 8.1 x 7.9 m
Base price: $235,200
This modern, square-shaped home is both transportable and architecturally stylish. Inside, there are two bedrooms, a stepped living area, and a kitchen with breakfast bar. The house is also designed with both morning and evening outdoor living in mind to make the most of the natural light. If you like small, modern and two bedrooms is enough, this is your chance to build it!
← View previous | View next →
Plan can be mirrored

Base price: $235,200
For a finished home from the foundations up in our standard specifications, including:
Council fees (PC sum $5,000)
Services and drainage laid from boundary (allowance 15m)
Rib-Raft 300mm waffle slab foundation based on 3604 ground
All NZ timber framing
Colorsteel Endura Roofing
Cladding selection from our standard selections
Double glazed thermally broken windows
Earthwool insulated with GIB interior linings
Level 4 plastering and painting
Bathrooms, kitchen and appliances
Selected flooring from our standard flooring range
Everything in our Standard Specifications (excluding upgrades)
Base price excludes:
Specification upgrades
Resource consents or any surveying consultants if required
Earthworks & retaining walls
Drainage & services (including sewer, detention and water tanks if required)
Structural Engineering and site-specific foundations
SED wind zones and/or coastal areas
Landscaping